[幻筑空间设计]不规则户型装修方法,让空间不在尴尬!
03-22与户型方正的房屋相比,不规则户型总有一、两处“鸡肋”空间让人手足无措,比如:多边形户型,弧形窗台,斜面墙体等。如果您家也是不规则户型的话,可以通过家具、灯光等方法将不规则户型的缺点转化为优点。
空间分割
不规则户型会给人造成压迫感,并且动线也较混乱;需要将空间重新划分,合理居家动线。

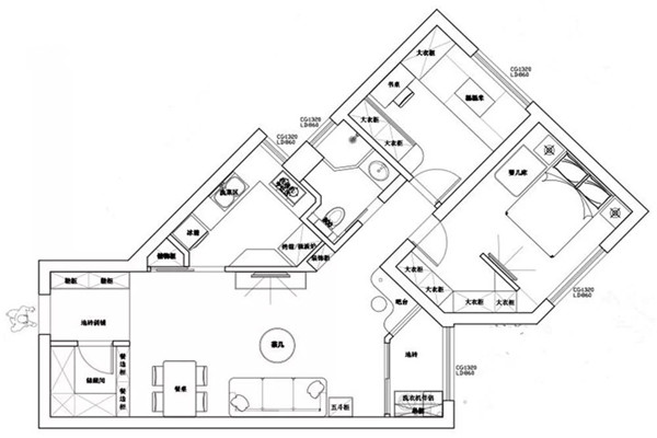
不规则户型(改造前)
在上图的户型中,客厅、厨房与卧室都属于不规则结构,客厅很长缺少隐私性,厨房的门洞开在客厅中间,破坏整体客厅主线。

不规则户型(改造后)

业主可以将一个空间拆分成多个功能区域,再通过隔断或柜体作为各个空间的界线。上图案例中,设计师将客厅规划为玄关、客厅与阳台三区,并在玄关区增设储物间;并利用客厅斜角,设计了一处吧台。

玄关与客餐厅之间使用了拼花地砖,不仅能分隔功能区而且还具有装饰效果。
巧用衣柜
卧室&书房
若空间较小且为不规则结构,可以利用定制橱柜将空间分割为衣帽间和卧室两个区域,将空间利用率最 大化。

利用定制衣柜打造步入式衣帽间,最 大程度弥补了空间的异型感,位于衣帽间与休息区之间的隔墙还充当了电视墙。

对于圆弧形的墙面,可依照角度定制一个衣柜或书柜,既能隐藏空间的不足,还为居室开辟了新的收纳空间。
厨房
厨房异型,可以按照测量的角度及尺寸,来设计橱柜,这样不仅可以弱化柱子的尖锐感,又能起到减弱倾斜墙体角位的作用。

若可以改变门位位置的话,可以通过移动门位的方式来完善空间结构。

结合光源
有些不规则是在天窗下,可以利用天窗给房间营造舒适的光照效果。

可以将家具摆放在天窗下,但是要注意,为了避免光线被遮挡,床面不宜过高。

或者在圆弧形的天窗下摆放一张沙发及垫脚凳,可以坐着看书喝茶,让自然光线透过天窗洒下来,更加温馨舒适。
以上就是小编介绍的全部内容,希望对大家有所帮助。想要了解更多装修攻略,敬请关注幻筑空间设计,还可免费预约为您设计适合你的装修方案。
免费为我报价
预约免费设计