[北京悦达锋尚装饰]简约原木风三居室,干净利落!
01-21生活压力太大,简洁自然的装修备受大家喜爱,日式原木风更是其中的佼楚,简洁自然没有繁杂的装饰,原木特性将轻松的居家氛围显露无遗。这次要分享的是一套使用面积110平的案例,日式原木风太漂亮了,干净利落自然纯粹,家居氛围棒极了,住进去就不想出来!

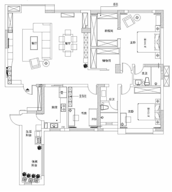
常住人口三人,屋主希望拥有足够的储物空间,希望主卧有衣帽间,其次要有杂物间。重新规划空间,满足业主需求的同时,保持空间动线合理,改善通风和采光条件。

客厅简洁自然宽敞,原本客餐厅拥挤闭塞,打通阳台后扩大空间改善通风采光,显然是个很明智的选择。大横厅布局,客厅与餐厅互通空间开阔,通过吊灯的不同划分功能区。

白色与原木色相互结合,营造出自然舒适的生活空间。电视墙定制组合柜,满足各种收纳需求,保持空间整洁。


阳台打通后,不仅视觉宽敞,还改善客餐厅通风和采光。左右两侧定制储物柜,提高居家收纳能力,把东西都收藏到柜子里,空间整洁让人很舒心。

厨房简洁利落干净大方,简单的色彩碰撞营造出理想的效果,冰箱嵌入60公分,让厨房整体更美观,动线更流畅。

公用卫生间采用干湿分区设计,外置浴室柜不仅让卫浴空间更宽敞,日常生活也更加便利。考虑到使用卫生,安装的蹲便器。

主卧卫生间,常见的布局设计,干湿分离+悬挂式浴室柜,让卫浴使用更加舒适,同时提高浴室柜使用寿命。

主卧素雅的色彩和简单的装饰,安静祥和、宁静致远。主卧和衣帽间没有安装门,借助落地窗和衣帽间的光线,空间更加通透敞亮。

衣帽间采用定制设计,开放式和非开放式结合设计,提高实用效果。矮柜设计既可以收纳,也不影响采光。

其中一间小卧室,改造成了书房空间。简洁舒适的布置,很是实用。实木百叶窗更好的表达了自然的元素,同时也更好的控制光线进入书房,营造不同的效果。


次卧简洁小清新,一抹淡粉色的墙裙和一圈淡蓝色的飘窗配色,给次卧增添了些许活泼感。定制衣柜,双开门设计,非常的方便使用。
以上就是小编介绍的全部内容,想要了解更多装修知识,想要了解更多装修攻略,敬请关注>北京悦达锋尚装饰,还可免费预约为您设计适合你的装修方案。
免费为我报价
预约免费设计