[北京绿缘居装饰]127㎡轻奢风格三居室,简约时尚感!
03-24面积:127㎡
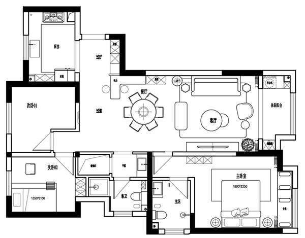
户型:3室1厅1厨1卫
风格:轻奢
装修方式: 全包
“美是各部分的适当比例,再加一种悦目的颜色。”本作品设计创意主要利用一些充满设计感与丰富色彩的物件,打造简约、时尚、自然的现代轻奢风格。

客厅整体表露出现代轻奢的空间感,沙发背景墙的线条和地板的大理石材质,展示小奢华的浪漫气息,单椅的高级色彩,让人沉浸其中。个性时髦的年轻化设计总是天马行空,异形的茶几、不对称的装饰画,它们呈现着特立独行、时尚活跃。

忙碌一天在进门时回归温馨,缓缓而来的轻奢感,缓缓而至的归属感,配上温和灯光、软绵沙发、柔和绿植,坐下瞬间,卸下疲惫,内心也跟着柔和。现代的时髦感,点到为止的设计手法让它成为客厅空间的一个焦点,软装成为设计不可或缺的元素。

餐厅与客厅在风格上保持一致,两者之间相通,视觉延伸感更强,视野更通透,更好地实现客餐厅的互动。富有创意的挂画精确地将设计与艺术引入空间,抓住眼球,提升层次感。色彩上大与小的比例呼应,创意出整体和谐里的韵律感,明亮简净的用餐环境,在恰切有度的空间中,给人带来一份不一样的烟火气。

生活就是这样,争不过朝夕,又念着往昔,每一个美好的瞬间,都值得被记录珍藏。让主人对于知识的畅想,在这一隅空间得以实现。纯粹的艺术光感隐隐约约中传达出美好的情境,静然优雅中富有变化,似有若无的韵律给人以无限遐想。

主卧将所有或玩趣,或温柔的元素聚齐,再赋以自然聊赠的一枝,共成治愈力满满的私密小天地,设计师以现代主义线条与轻奢时尚的色彩构造空间,诠释生活个性化的无限想象力。在软装上我们用少许金属以及温馨布艺装点,烘托出简约而典雅的卧室氛围。轻奢调的壁灯灵动而稳重,硬装的线条与床靠背的软包,延展的自由气息贯穿卧室内外,让业主在其中静享安静的私人时光。

室内设计是保留生活的一种方式,用包裹在空间里的思绪,抑制住永不止息的聒噪俗世。现代轻奢的家具、灯具和装饰画的选型表达着当代年轻群体特立独行的生活态度,这些造型总能让我们看到一种纯粹又坚定的力量,见证一个坦率不羁的时代特征与缩影。
以上就是小编分享的装修案例,希望对大家有所帮助。想要了解更多装修资讯,敬请关注北京绿缘居装饰 ,还可免费预约为您设计适合你的装修方案。
免费为我报价
预约免费设计