[北京汇巢别墅装饰]香邑溪谷303平米别墅简约风格案例
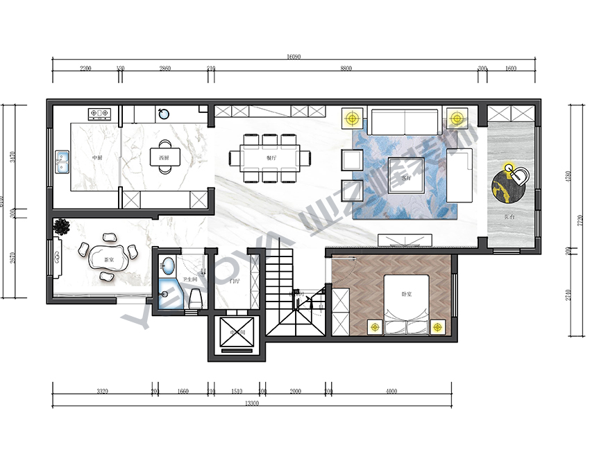
04-19--------------------------------------------------------【香邑溪谷户型图】--------------------------------------------------



小区:香邑溪谷
风格:简约风格
装修总价:135万
户型:别墅
面积:303m2

设计理念:
中式是根植在国人心中生生不息的文化传承,无论“西”风刮得有多烈,中式情怀依然是存在于骨子里的情愫。如何在中式调性中,让家庭不同年龄不同成员都能欣然接受,并且喜欢。是我们一直在寻找的平衡点。

客厅是传统与现代居室风格的碰撞,设计师以现代的装饰手法和家具,结合古典中式的装饰元素,来呈现亦古亦今的空间氛围。沙发背景墙的造型简洁现代,却在醒目位置饰以中国风墙绘,这种绝妙的组合给人以强烈的视觉意志力,成为时尚与古典的柔媚结合。整个空间的家具饰品,沙发椅凳,在现代元素的基础之中加入中式手法,完美的呈现在客户面前。中式风格的古色古香与现代风格的简单素雅自然衔接,使生活的实用性和对传统文化的追求同时得到了满足。

餐厅空间承袭了客厅的装饰手法,烟灰色与深棕色为主色,结合中式几何图纹来呈现。柜体背板与房门颜色一致,这种颜色特别古朴、自然。深棕色的恰当点缀让空间多了几分中式古典韵味,顶面金属线条呼应地面波打线,一上一下由家具本身和墙面水墨装饰画联接起来,统一而华贵。

居室在色彩方面秉承了传统古典风格的典雅和华贵,但与之不同的是加入了很多现代元素,呈现着时尚的特征。在配饰的选择方面更为简洁,少了许多奢华的装饰,更加流畅地表达出传统文化中的精髓。为了给居室增添几分暖意,饰以精巧的摆件,使整个居室在浓浓现代气息中渗透了几许古韵。

儿童房更多地呈现现代化的设计,隐藏于墙板中的灯带,墙面蓝灰色墙漆调色,简单实用的墙面收纳架搭配简单的小书桌,木色和白色的家具看上去更加纯粹干净,而可爱的小摆件则成为整个空间最美的点缀。
卫生间整体采用浅色为基调,深色点缀,地砖波打线,门及门套线,套色洗浴墙面,定制浴室柜由下而上增加了空间层次感。
-------------------------------------------------【设计师履历】-------------------------------------------

首席设计师:吴凯
擅长风格:新古典风格 新中式风格 东南亚风格
从业年数:14年
主要作品:景粼原著,北京院子,双珑原著,香江别墅,禧瑞墅,九章别墅,首开天誉,丽斯别墅,丽樽别墅,凯德麓语,西宸原著,中国院子,远洋奥北,远洋lavie,泷悦长安,中海墅,龙湾别墅,昆仑域叠拼,首开.缇香墅,西山艺境,国际花园,碧水庄园,鲁能七号院,莫奈花园等…
所获奖项:
2011年住宅建筑类百名优秀设计师大奖
2012年荣获北京第11届“美化家居”大奖赛设计优秀奖
2012年荣获全国十大优秀住宅设计师
2013年第三届中国国际空间环境艺术设计大赛优秀奖
2013年度中国十大影响力设计师
2016年荣获北京第12届“美化家居”大奖赛设计优秀奖
2018年荣获第六届中国国际空间环境艺术设计大赛筑巢奖—别墅空间类 银奖
毕业院校:北京服装学院环境艺术 进修于清华大学美术系 进修意大利米兰理工大学
了解更多的装修知识和装修案例,请点击关注北京汇巢别墅装饰。
免费为我报价
预约免费设计