[成都川工装饰]深蓝色储物柜配灰色沙发,漂亮有档次

05-12

小户型空间装修一定没档次吗?当然不是了,这主要还是看色彩设计与软装搭配是否恰当!60多平米的小两房,整体采用十分简洁的现代风格来设计,局部采用深蓝色来装饰,再搭配有点轻奢质感的家具,营造出的家居环境看起来特别漂亮。下面就一起来看看这套特别漂亮的小户型装修设计效果图!

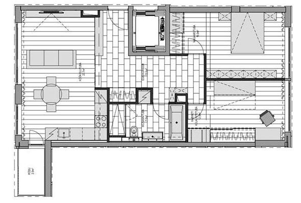
先来看看本案的户型图,标准的小两房户型,进门右手边利用定制储物柜进行空间隔断,增加室内的私密性。开放式厨房和餐厅位于客厅沙发的后面,家里唯一的阳台面很小,在厨房外。整个户型十分方正,空间的利用率很高。虽然是两房,只设置了一间卧室,另外一间卧室则设计成书房。无论是单身还是小两口,这样的小空间都有着非常不错的舒适性。

整体的设计效果十分简洁,墙面刷上白色乳胶漆,地面铺上棕色木地板,没有吊顶的客厅看起来却特别时尚上档次,这都得益于正确的色彩设计。白色的电视背景墙没有过多的装饰,定制的深蓝色电视柜采用挂墙式安装,底部留空的设计方式,不仅让打扫卫生更方便,也不会占据地面空间。

浅灰色布艺沙发,搭配一张圆形的黑色茶几及单人小沙发,舒适的家居氛围看起来似乎有点小资的感觉。特别是定制的储物柜式隔断墙,既起到了隔断空间的作用,更提升了空间的装饰效果和档次。深蓝色的柜,配上上黑色的小拉手,居然有种轻奢风的格调与品位。

通往卫生间、卧室的过道,利用深蓝色板材定制的储物柜,既装饰了墙面,更提升了家中的收纳能力。储物柜和定制的橱柜连成一体,空间利用特别充分。

黑色圆形餐桌配几把黑色餐椅,直接摆放在沙发后方,黑色、深蓝色、棕色的色彩搭配看起来真是非常高级。餐厅和客厅上方中间位置安装了造型简约时尚的金色吊顶,大大提升了整体的装修档次。

开放式的厨房,深蓝色定制橱柜,配上黑色的石材台面,效果非常上档次。唯一的阳台利用玻璃门进行隔开,满足衣物晾晒的实际需求。

卧室的设计依然非常简洁,白色的墙面,棕色的地面,配上浅灰色布艺软包床架,极简的设计效果却很有高级感,用当下比较流行的词来形容就是有“逼格”!房门后就是定制的深蓝色衣柜,床尾墙面安装了深蓝色的挂墙式电视柜,与客厅的设计效果雷同。床头柜的造型设计非常漂亮,浅蓝色的挂墙式半圆形设计真是令人耳目一新。

另外一间卧室设计成书房,摆上浅灰色布艺沙发和圆形小茶,利用墙面定制了一排深蓝色的书柜,特别上档次的小户型空间装修设计。

以上就是小编为您分享的深蓝色储物柜配灰色沙发,漂亮有档次全部内容,点击成都川工装饰了解更多详情资讯!

成都装修> 川工装饰> 动态详情
相关推荐
成都青羊区装修公司有哪些成都金牛区装修公司哪家好成都餐饮店装修设计公司排名成都幼儿园装修设计公司排名成都火锅店装修公司哪家好成都美容院装修公司哪家好成都学校装修公司哪家好成都网吧装修公司哪家好成都全包装修公司哪家好成都网咖装修设计公司排名

免费为我报价

预约免费设计