[成都现代装饰]120㎡三房空间设计简洁特漂亮

05-09

大概120平米的三房户型,整体采用十分简洁的现代风格来设计,淡灰色的乳胶漆墙面,地面铺上米白色的瓷砖,没有亮丽配色的时尚空间却也清爽干净。有些朋友或许会认为120平米的空间,选择现代风格来设计会显得不上档次,但看到装修效果后,也许就会让你改变想法。下面就一起来看看这套打通阳台的极简现代风格三房装修案例!

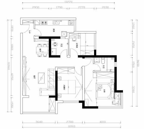
先来看看本案的户型图,虽然不是南北通透的户型,但三房两卫的空间非常实用,也是当下比较主流的户型。全屋只有一个阳台在客厅外,主卧室的面积非常不错,有一个独立的卫生间。进门对面就是独立的厨房,封闭式的厨房空间,没有烹饪油烟扩散的问题。

客厅餐厅一体的空间布局,顶部四周安装了造型简洁的吊顶来提升装修档次,淡灰色的墙面配上白色的踢脚线,没有定制储物柜的空间视野开阔,通透而明亮的家居环境令人心特别愉悦。客厅和餐厅之间没有硬隔断,通往卫生间和卧室的过道从视觉上对空间进行了划分。

家里唯一的阳台和客厅打通后,让空间变得更加宽敞,没有过多改造的阳台也不会影响衣物的晾晒,阳台两侧的墙面安装了储物柜和拖把池,提升阳台的功能性。

客厅电视背景墙的装修效果虽然简洁,却也特别大气,深灰色大理石装饰的墙面简洁而大气,绝对让客厅的装修效果提升了几个档次。

米黄色布艺沙发组合,搭配黑色的椭圆形茶几,素雅的配色或许不是特别时尚,却也让家居氛围显得更加温馨。沙发后的墙面利用三幅黑色边框装饰画来点缀,黑白色图案的装饰画居然让客厅有种中式风格的韵味。

相对独立的餐厅空间,搭配了一套黑色的实木餐桌和四把棕色皮艺餐椅,利用墙面定制了整面墙的棕色储物柜,现代风格的设计效果也能显得很高级。

狭长的厨房空间,利用墙面定制一排白色橱柜,一定型的橱柜布局,动线设计合理,烹饪操作也就更加方便。墙面和地面都选择了深灰色的瓷砖来装饰,再利用黑色进行点缀,黑白灰的色彩搭配十分经典。

次卧和儿童房的面积十分狭小,利用墙面定制了到顶的推拉门衣柜,面积虽然不大却依然感觉很温馨。

主卧室里的卫生间面积非常不错,利用黑色玻璃隔出了独立的淋浴区,白色为主的空间看起来特别清爽干净。淋浴区、马桶、浴室柜一字排开,干湿分离的设计让卫生间的环境不会太过潮湿。

以上就是小编为您分享的120㎡三房空间设计简洁特漂亮全部内容,点击成都现代装饰了解更多详情资讯!

成都装修> 成都现代装饰> 动态详情
相关推荐
成都超市装修公司哪家好成都双流区装修公司哪家好成都奶茶店装修公司哪家好成都设计好的装修公司成都全包装修公司哪家好成都龙泉驿区装修公司有哪些成都装修公司排名成都酒吧装修公司哪家好成都足浴店装修设计公司排名成都民宿装修公司哪家好

免费为我报价

预约免费设计