[常州艾艺轩装饰]大名城122平套三美式风格装修案例
12-14小区:大名城
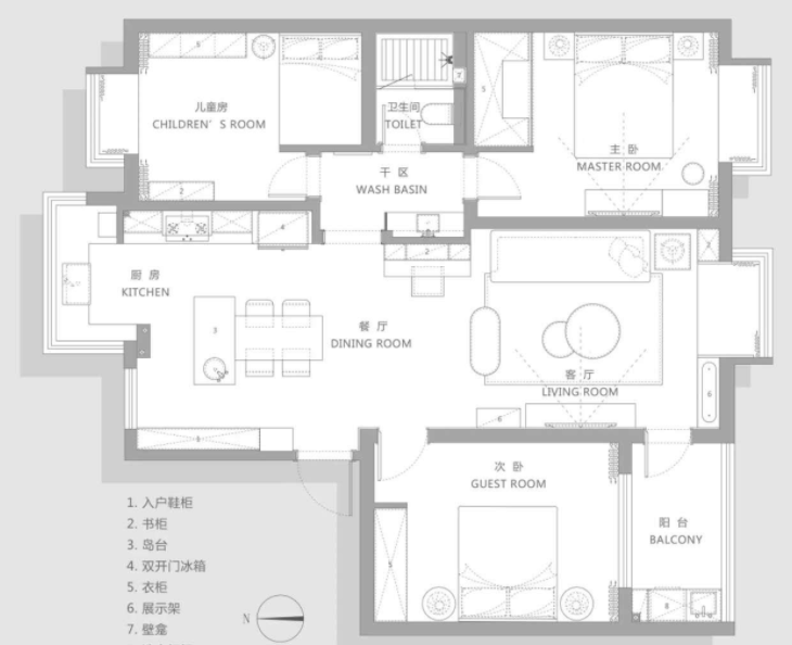
面积:122平
装修风格:美式
装修公司:常州艾艺轩装饰
今天小编给大家推荐的是一套122平美式风格案例。设计师在本案设计中采用经典的美式原木的空间风格,加上流行的敞开式的格局设计,融入软装的复古和轻奢元素。打造出一个精致,优雅,别具一格的家。

客厅以原木,白色为主,飘窗的设计亮点,墙面隐形门的设计,整个空间散发出雅致的独特魅力。

餐厅在进门的玄关处,鞋柜设计鞋凳和整面立体高柜来收纳,加上实木餐桌,把顶上的横梁设计成餐厅的亮点,使得空间舒适便捷而又大气。

厨房以开放式设计,和餐厅的分割以吧台和地面砖来形成亮点.而且使用更加便捷舒适。

主卧延续整体风格,灰色和白色为主.地面也是原木地板,搭配软装金色,棕色和黑色点缀,形成优雅的档次氛围。

次卧的设计白色和灰色的拼接形成亮点,使得整体空间优雅而时尚。

儿童房的床头背景墙壁纸搭配卡通挂画,让空间童趣十足。

卫生间设计干湿分离..灰色墙地砖搭配原木柜体,黑色的淋浴房门框,简约而舒适。

这个户型把厨房打通,设计开放式,让整体空间更加宽敞通透,在空间中书房的设计在客餐厅中间,以书桌的形式来达到后期使用,整体的收纳需求更加利用化。
免费为我报价
预约免费设计