【筑尚装饰】北欧简单色,还原生活本真的设计!

12-21

01

TK室内设计

家装设计图

生活终归要独自一人,一切都是修行

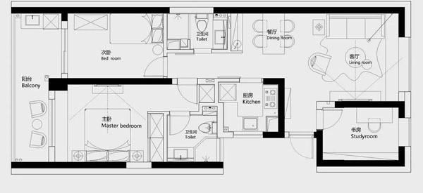
- 户型分析 -

户型图

超高层得房率低。房子建筑面积97.29㎡,除去墙壁只有71㎡,绝大部分的墙是承重墙。再加上小区不允许包阳台,导致空间布局需要极其精打细算。

次卫面积小且暗。小卫生间的存在占空间、挡光线,而且马桶预留管道的位置会离门很近。

针对房型存在的问题,设计师提供了2套方案。

- 开放方案 -

户型图

放弃次卫,空间并入公共区域。厨房更改为开放式,餐桌成为开放区域的中心,并兼任中岛和工作台。

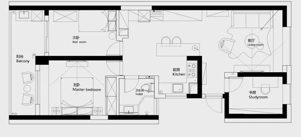
- 传统方案 -

户型图

充分利用原设计,不做过多改动。虽然以餐桌为中心的开放方案大气敞亮深得人心,但为了彻底避免油烟和味道溢出厨房,处女座的业主还是选择了最保守的方案。

- 玄关 -

家装设计图

玄关距离短且狭窄,并不适宜放置大鞋柜。北欧风格的鞋柜和地毯体积小颜色轻,缓解了小空间的压抑感。

家装设计图

宜家洞洞板搭配不同配件,满足各种收纳需求。

家装设计图

纪念碑谷同款盆栽

- 客厅 -

家装设计图

夹边套的客厅朝向偏北,采光不是特别好,因此客厅的设计重点是明亮。轨道灯代替主灯,搭配大飘窗和色调轻浅的家具,轻盈不失温馨。

家装设计图

电视装了壁挂的架子,满足边吃饭边看电视的小愿望。年轮风格的地板色调年轻,摸上去会有木纹的肌理感,北欧中不乏工业风质感。

家装设计图

墙面刷了淡绿色乳胶漆,很清新,不娘。

家装设计图

工业风的壁灯,灯泡瓦数不高,入夜后氛围很棒。用挂画摆脱无聊墙面。

家装设计图

- 餐厅 -

家装设计图

简单清爽的原木色餐厅

家装设计图

一旁增加了带水吧功能的餐边柜,加装咖啡机、净水器和自动热水壶等设备,幸福指数up up up。

家装设计图

从镜中可以看到厨房的黑框玻璃谷仓门。玻璃材质保证了餐厅的采光,搭配黄铜镜食用更佳。

家装设计图

置物架上主人收藏的马克杯整整齐齐,下方设计了隐藏的凹槽灯确保光线。

- 主卧 -

家装设计图

主卧的床头柜、床靠背和飘窗是一体化设计,配合MUJI无靠背收纳床,整体风格清新简约。浅灰色的背景墙和水泥灯稍稍添了些清冷气息。

家装设计图

大斗柜十分适合分类收纳,衣架是获得红点奖的PIY。

装饰画中是挪威的一个景点,传说恋人们站在两边山崖中间的石头上,如果不是真爱,这块石头就会和人一起坠落山崖。

家装设计图

衣橱采用了长虹玻璃搭配黑边金属移门的设计,此外还安装了充电的感应橱柜灯,开门即亮,十分方便。

家装设计图

次卧使用频率不高,设计和布置都以简单为主。

家装设计图

开放式赠送的书房很小,加了一面书柜以兼顾收纳和展示的需求。

家装设计图
德州装修> 筑尚装饰> 动态详情
相关推荐
德州可靠的装修公司德州口碑好的装修公司德州装修公司排名德州信誉好的装修公司德州经济实惠的装修公司德州靠谱的装修公司德州性价比高的装修公司德州装修公司哪家好德州实力强的装修公司

免费为我报价

预约免费设计