【东莞阔达装饰公司】350平带天井法式大别墅 直接在家里装了电梯
11-19这年头买别墅的人越来越多,带天井的别墅也是越来越多。业主就买了一栋这样的别墅,刚开始嫌弃天井太鸡肋,白白浪费面积,可等到设计师用玻璃围一圈再种棵树,立马变身一个室内小花园,一进门就被玻璃天井迷住!邻居都羡慕不来的。作为一栋大别墅,家里的设计特色自然不止这一个了,想知道就跟我一起往下看吧,保准让你们惊艳~
面积:350平
风格:法式
这栋大别墅一共5层楼,为了老人上下楼方便,直接在家里安装了电梯,上下楼都不用爬,简直是贫穷让我丧失想象力!一楼主要是公共区域,比如客厅和厨房餐厅都在这一层。
客厅里并没有摆放想象中的豪华沙发,而是仅在中间摆放一张精致造型的深蓝色沙发,一张玻璃小茶几,给人第一感觉就是简单自然。有亮点的是客厅旁边满墙的储物架,收纳功能满分。
客厅的另一边就是厨餐厅了,因为中间玻璃小花园的存在,厨房的采光也是极好的,大理石岛台同时也充当了餐桌的功能,黑白相间的地砖也给整个空间增添了一份魅力。
原本这儿有个小阳台,后来设计师直接打通扩大了厨房的面积,将这儿改成了中西厨,除了能满足日常做饭以外,平时女业主还能在这儿做烘焙。设计双厨也是为了让家人之间保持比较好的交流,毕竟厨房面积大,每个人都有发挥的空间。
别墅的二楼属于休息空间了,老人房和儿童房在这一层,这也方便了父母照顾孩子,两个卧室都有单独的卫生间,使用起来也很方便。另外为了老人上下楼方便,特地将老人房安排在电梯旁边,设计很贴心。
儿童房里设计得简单舒适但又不失趣味性,而孩子的房间又怎么能少得了书桌呢,休息和学习都不能少,要做到劳逸结合!
三楼就很任性了,整个一层楼都是为了主卧准备的,不仅有卧室还有一个超大的卫生间,将马桶,淋浴间,洗漱间,以及浴缸区全都划分开来了,最大程度的保证了业主使用的方便性。
主卧里空间还是挺宽敞的,床尾摆放了床尾凳搭配小茶几,晚上睡觉之前可以坐在这儿小酌一杯,很有情调。

三楼除了卫生间里有一面墙衣柜以外,床铺对面整面墙也都是衣柜,这一点估计就会让很多女生羡慕了吧!
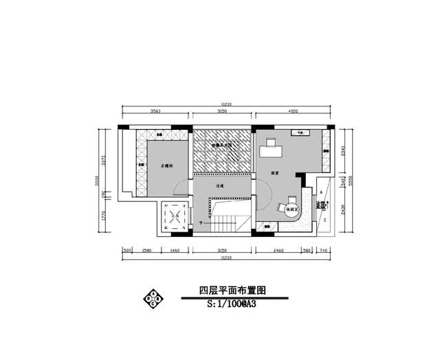
而更让人羡慕的的是四楼竟然还有个衣帽间,这下估计业主有几百件衣服都能装得下吧!而家里的天井屋顶也用玻璃封起来了,这样既能解决下雨的问题,又不会影响采光。
四楼的画室里设计师还利用了拐角处打造了一个卡座,设计成了休闲区,偶尔画画累了,可以坐在休息,顺便欣赏一下风景。

这栋别墅其实还有个地下室,下面不仅有书房,洗衣房,还藏了一个健身房,业主没事就可以下来运动一下,都不用出门的,这简直就像是偶像剧里面的剧情嘛!是不是很让人意外?不知道东莞阔达装饰公司小编给你们带来的这样的一栋法式大别墅有让你们惊艳到吗?
免费为我报价
预约免费设计