[锦多装饰]100平复式简约装修案例,开放式设计清爽通透!

09-13

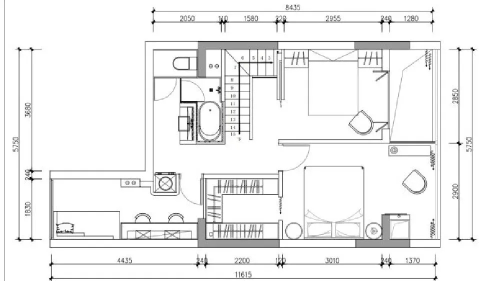
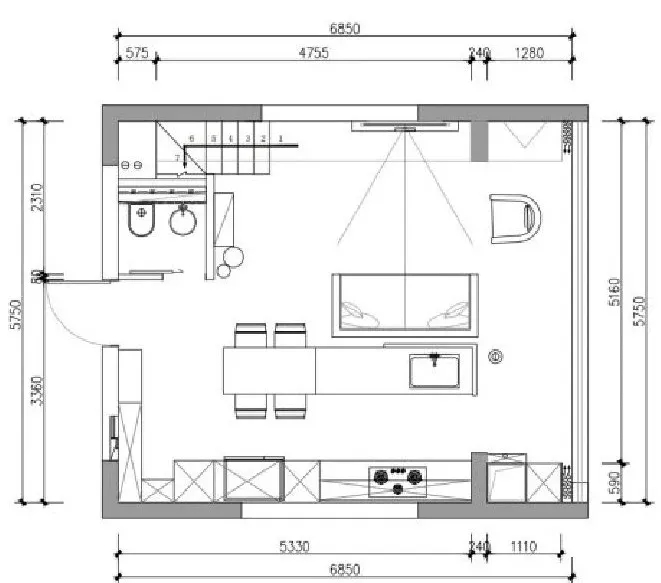
本期锦多装饰给大家分享的是一套100平简约风格新房装修,本案例有两层空间,选择了清爽透白的开放式设计,喜欢的朋友继续往下看吧!

玄关

客厅

餐厨区

阳台

楼梯

主卧

客卧

卫生间

以上就是关于本期100平复式简约装修案例,开放式设计清爽通透!的相关内容介绍,希望能够对大家有所帮助。如果想要了解更多的装修知识,请点击关注锦多装饰

南京装修> 锦多装饰> 动态详情
相关推荐
南京水果店装修公司哪家好南京写字楼装修公司哪家好南京足浴店装修设计公司排名南京室内设计公司排名南京超市装修公司哪家好南京会所装修设计公司排名南京建邺区装修公司有哪些南京饭店装修公司哪家好南京宾馆装修公司哪家好南京网吧装修设计公司排名

免费为我报价

预约免费设计