[星杰国际设计]南京别墅装修,超炫科幻风来袭,“星球大战载具千年隼”

05-16

设计之美,优秀实景案例赏析

Millennium Falcon 千年隼,是星球大战里的主角载具,没有之一。

1977年在「星球大战:新希望」中登场,由船长游侠索罗和忠实的大副楚巴卡驾驶,随义军们久经沙场。至今,千年隼号已经在太空中驰骋了41年,作为经典传奇成为科幻符号广为人知。

而今天,这艘千年隼号降落在家居设计领域,在设计师天马行空的畅想设计中,以“停在美国街头的千年隼”为名,从情怀的文化维度结合最本质的物质维度,用极具科幻感、机能风的未来派设计,打造出科幻电影般未来空间。

从星际迷航到火星救援

从神州一号到神州十一号

从嫦娥奔月到“阿波罗”计划

多少少年在心底深藏着一个太空梦

搭乘宇宙飞船

自由翱翔太空

儿时的这个梦或许在这里可以实现

设计师说:

说到风格,我刚接到本案的时候,确实也纠结过。业主跟我描述的负一负二楼是作为重点设计区域,要有LOFT的感觉,功能需要室内篮球、电竞室、VR体验式、酒吧区、台球以及健身区。

一楼二楼三楼又想做得摩登时尚,给我看过他们喜欢的家具。此时的我是纠结的,量房回来后迟迟未能下笔,后来,想到前期业主提到的想做一个星球大战主题的影视厅,给了我一个大大的思路,我何不做一个与众不同的设计呢?

我把客户的点都综合起来,把一个家从负二楼到三楼整个串通起来。一楼到三楼为美式建筑家居,负一楼为太空飞船内部结构,负二楼则为美国的街头。定义主题为“停在美国街头的千年隼”。我是一个有情怀的设计师,但是这个情怀不是我的,是客户的!

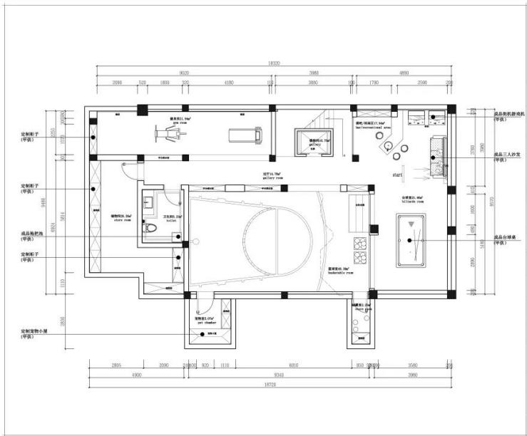
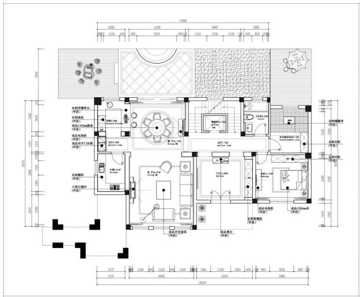
负一楼

负二楼

一楼

二楼

三楼

停在美国街头的千年隼

龙湖原山

坐落于龙湖原山的该项目,为创意落地提供了理想的土壤。

龙湖原山围绕“中西汇”的建筑理念,以“合而不群,卓而不群”的设计理念,于建筑风格、园林景观、建筑选材与设备等诸多方面,汇集世界精彩,打造新时代精品住宅的标杆。

太空的色彩:

在古人眼中,夜晚的天空若无明月照耀,繁星点缀,便是漆黑的。而千百年后的今天,科技伴随着时间飞逝迅速发展,人类的视野早已透过那层看似深不见底的漆黑屏障,看到了黑夜之外的绚丽色彩。

宇宙更像是画家的调色盘,又或是无意间打翻的颜料瓶,各种色彩混在一起,形成了一幅幅陆离斑驳的作品。

时而深沉如蓝色。

蓝色是天空,是水,是空气,是深度和无垠,是自由和生命,蓝色是宇宙最本质的颜色。

永恒而持久,简洁而明快的蓝色色调,它暗示着日暮时分的天空,提供给人沉思的机会与慰藉。

在蓝色的包围中,对自我身份和宇宙起源进行思索,静谧沉默愈发彰显典雅气质。

时而活跃如橙色。

橙色代表时尚、青春、动感,有种让人活力四射的感觉;炽烈之生命,太阳光也是橙色。

在设计师看来,橙色,更是自由的象征。

德国诗人里尔克在致俄耳甫斯的十四行诗里对少女说:“跳橙色之舞。”

考虑家居的视觉效果,高饱和度的橙色,搭配冷色调的白、墨绿、藏青等中和一下便能显出层次感。

橙色的应用成为设计师空间设计中的致敬之作——克劳德·莫奈的日出、玛莎·沃尔特的遮阳伞、格鲁吉亚·欧姬芙的红罂粟,它还在亨利·马蒂斯的作品中变得狂野而抒情。

太空的温度:

宇宙的温度,从可怕的严寒,到难以想象的高温,很难用一个精确的数字来形容如此玄妙的空间。

就像人和人之间的距离,不可以用物理层面的刻度来衡量,只能用心来衡量。

秉承着对宇宙空间的思索,设计师在千年隼号内部设计了足够彰显温度、沟通情感的室内篮球、电竞室、VR体验式、酒吧区、台球以及健身区。

整体空间因为具有温度的设计开辟了更具拓展性的功能性,挥洒汗水、释放激情,自由翱翔的太空梦一步步成为现实。

再来欣赏几张“座舱”内的未来美景——

从人类尝试和太空建立联系,总是因为勇敢在史册中书写姓名。

当停在美国街头的千年隼横空出世,背后所庆祝的勇气和决心,亦让人所动容。

徜徉光影变幻,感受多彩世界。

设计理念:

源于传统,更要突破传统,不仅要将自由、创新的理念植入生活空间,更能把客户的需求用心转化为现实,为客户打造一个柔和温暖的家。

设计感悟:

比起夸夸其谈,我更喜欢踏实做事。我一般都是先根据客户需求、项目性质,确定设计的切入点,从概念到每 一个细节慢慢推进,最后实现落地。人在空间中的感受 是全部设计工作的核心。风格、材质、色彩只是设计手法而已。

了解更多别墅装修案例,请点击关注南京星杰国际设计

南京装修> 南京星杰国际设计> 动态详情
相关推荐
南京实力强的装修公司南京西餐厅装修设计公司排名南京美容院装修设计公司排名南京水果店装修公司哪家好南京秦淮区装修公司名录南京面馆装修公司哪家好南京网咖装修设计公司排名南京正规装修公司排名南京可靠的装修公司南京店铺装修设计公司排名

免费为我报价

预约免费设计