[青岛金匠共享装饰]128㎡北欧风五居室,简单装修也很高级!
06-10128平米的五居室大户型,怎么在如今简约风盛行的时代杀出重围,让简单装修也显得高级?现代北欧风就非常不错,硬装简单化,软装用色彩弥补,实木质感更舒适。128平米的大房子不知道怎么装修效果好,多学习一下,别人家现代北欧风的装修。
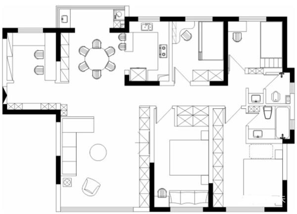
平面布置图

1.北欧风入户装修
入户右边做了一整面鞋柜,兼具换鞋凳与挂衣功能,左边是书房。

2.北欧风客厅装修
阳台纳入客厅,阳台墙面顶面用科定板包起来解决原梁位过低压抑的问题,也强化视觉整体性。

木饰面搭配灰色墙面,蓝色转角沙发搭配脏粉色单椅,装饰画与家具形成撞色,让空间色调活跃起来。

3. 北欧风餐厅装修
客餐厅互通,采光与空气相互流通,餐厅以原木色为底,辅以灰色与白色,吊扇灯与整个环境完美融合。

餐厅做满墙的餐边柜,有足够的收纳空间,缓解厨房偏小的问题。

4. 北欧风厨房装修
开放式厨房,采用集成灶,地面贴爵士白纹理的六角砖,吧台与黑板墙让居家更具文艺范。

5. 北欧风卧室装修
书房,背景书柜藏露各半,中央空调的回风口巧妙的利用书柜空间隐藏起来,书桌上方的层板下面嵌入触控阅读灯。

老人房用色简单温馨,灰色的宁静,木色的自然,装饰画辅一抹清新。

主卧过道做了穿衣镜,发挥基本功用的同时延展视觉空间。

主卧选用深蓝色做主色调,业主坚持在每间卧室都装吊扇灯,最后选白色的款,弱化存在感。床头特写,深邃蓝点缀装饰画与金属壁灯,并衬托出实木家具的细腻质感。

6. 北欧风卫生间装修
主卫灰色防滑砖搭配白色工字铺地铁砖,设置浴缸,黑白灰的配色让洗漱空间显得格外干净。

以上就是小编分享的装修案例,希望对大家有所帮助。想要了解更多装修资讯,敬请关注青岛金匠共享装饰,还可免费预约为您设计适合你的装修方案。
免费为我报价
预约免费设计