精品案例|配色大胆&细节设计 这家的简约风可一点不简单

05-28

本期极家精装迎来了高先生和太太的雅居,这是一套190㎡复式房,并附带小露台。喜欢现代简约,但又要透露着与众不同。按照他们的话说,就是要平淡中透着惊喜,绚丽中带着低调。这样略带抽象的设计需求,可是很考验我们设计师的功力哦。一起往下看吧!

案例信息

套内面积:复式190㎡

居住人口:高先生夫妇及一双儿女

风格:现代简约

极家精装设计师:陈建国

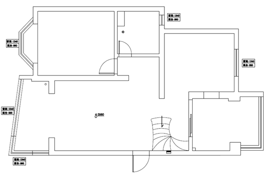
一层原始平面图

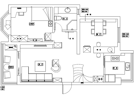
一层改造后平面图

二层原始平面图

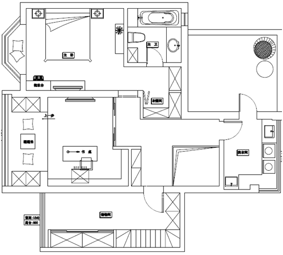
二层改造后平面图

设计小心机 带来平淡中的小惊喜

太太喜欢日式的禅意和席地而做的随性,先生喜欢黑胡桃木的脉络感。于是设计师将黑色胡桃木作为客厅的主基调,从进门的鞋柜到顶部的木饰面装饰,一气呵成。不仅对空间进行了块状的划分更增强了进入客厅的仪式感。

入户鞋柜白色面板装饰,采用无拉手按压式开启方式,配上柜体中部镂空的设计,方便放置钥匙、包包等随身小物件,简洁大方很实用。

同色系竹木纤维的沙发背景墙搭配不锈钢黑金属条,增强了空间的纵深感。沙发是太太的心头好,茶几更是爱不释手,这也是设计师隐藏的小惊喜。太太喜欢日式的盘腿坐,所以沙发的坐垫比普通沙发更深一些,灰色棉麻布料更添禅意的质感。茶几特意做成35cm高,太太席地而坐刚刚好。

要想家与众不同,无需太贵,心思才重要。客厅的灯并没有千逃万选,简约大方的小筒灯就很好,不夺家具和背景墙的风头。

U型厨房放了双开门冰箱,所以设计师又在厨房推拉门旁设计了一组到顶的储物柜。增强收纳空间,还嵌入了烤箱。出了厨房就是餐厅有些过于直接了。设计别具匠心的设计了一个小吧台,增强了空间的承接感。吧台1.2m高,平日里围着喝茶、弄花别有一番情调。

不想餐桌上乱糟糟,餐边柜绝对不可少。设计师将餐边柜整墙做满,储物空间增强了好几倍。上半部分白色面板搭配开放格,略带设计感拿取还方便。下半部分是黑色镜面玻璃,放些红酒进去,若隐若现,于简约之中又凭添了一份神秘感。

餐厅采用了黑色的工矿灯,简单又独特,与整体空间相处和谐。

主卧在二楼,继续着黑白灰和胡桃木的搭配,比床品和窗帘更深一度的灰色背景墙让空间显得更静谧安和。大板床和床头柜呼应整体简约风,矮矮的设计太太很喜欢。

两个床头灯用金属线从顶部垂下,镂空的扁鼓造型很特别,总能引得人们的关注。

现代简约中的别样情怀

深厚的文化底蕴来源于夫妻二人对书籍的喜爱,书房是必须的。整面墙都做成了书柜,中央空调的进风口刚好藏进去。书柜采用了古朴的博古架的元素,错落有致,还能放些精致的小摆件,时刻彰显主人的品味。

书桌的设计很独特,模仿了以前的打字机的元素。桌尾带有一个V字的凹陷空间,原是防止打字机纸张掉落。虽然现如今只能用来防止物品掉落,但是先生就是喜欢这样略带情怀的家具。

临窗设计一个榻榻米,兼具客卧功能。侧边三个抽屉的设计储物更方便。床头还有一个衣柜可以放置换季衣物和棉被。

大胆配色及用材 打造别致主卫空间

浴室大胆采用了深浅不一的砖红色马赛克砖大面积铺开。高脚的亚克力贵妃缸尽显贵族气质,高炮龙头大气奢华,与马赛克墙面搭配起来别有一番风味。

地面采用了适用于庭院的青石板砖,别致新颖更防滑。考虑到青石板砖表面凹凸不平容易藏污纳垢,于是设计师便建议在砖上涂上一层清漆。防止灰尘粘连更易清洁。

上海装修> 极友家居集团> 动态详情
相关推荐
上海静安区装修公司哪家好上海餐饮店装修公司哪家好上海超市装修公司哪家好上海嘉定区装修公司哪家好上海信誉好的装修公司上海饭店装修公司哪家好上海网咖装修公司哪家好上海卢湾区装修公司哪家好上海可靠的装修公司上海店面装修设计公司排名

免费为我报价

预约免费设计