【遂宁春满人间装饰】东湖丽景150平米法式混搭风格装修案例

05-05

本套案例是为遂宁市东湖丽景小区的一套150平米的户型,房屋业主为一家三口,业主夫妇和他们的女儿,设计师根据家庭成员的各种需求,在户型结构上更为突出细节上的设计,将150平米小跃层,可以说是设计的十分精彩!而在装修风格的选择上,主要采用的是法式混搭风格来装修的,为营造大气而温馨的空间氛围,这也正是他们所追求的理想中的家居氛围!

小区:东湖丽景

户型:平层改小跃层

装修方式:半包。软装饰费用3万元,包括家具、电器费用的话,总共花费了五十万。

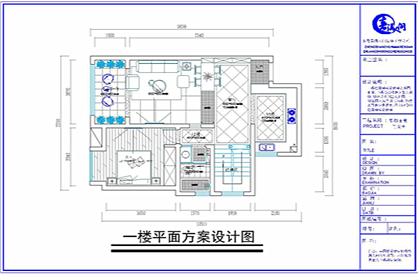
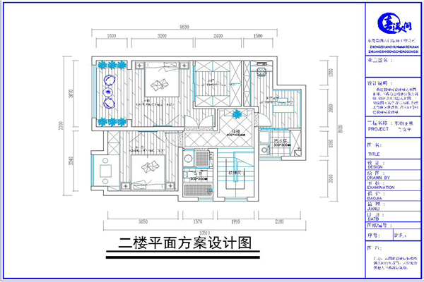
户型图:

150平混搭装修案例

小跃层户型图一

法式混搭装修

小跃层户型图二

设计师设计效果图展示:

150平米装修设计

客厅设计效果图

150平米装修案例

厨房设计效果图

150平米装修

楼梯间设计效果图

春满人间案例

主卧室设计效果图

春满人间装修设计

儿童房设计效果图

春满人间装修

次卧室设计效果图

客厅:

客厅是一个家的中心,也是家居装修的一大重点。法式混搭风格在本案中的客厅装修中体现的淋漓尽致。家具的布置是客厅空间的一大亮点,皮质的组合沙发围合成一个比较不错的交谈空间,圆弧形的造型,能够给人一种亲切感!

三幅并列悬挂的装饰油画、墙面对称安装的铁艺壁灯、天花顶上的铁艺吊灯,以及一些绿植的布置,为整个空间营造出舒适的氛围。至于阳台位置,大面落地窗的布置+纯色的窗帘,又有一种浪漫存在!

春满人间装修案例

小跃层客厅装修实景图

厨房:

本方案中的厨房空间,我们可以看见设计师在这样一个小的空间内,将空间充分且合理的运用起来,且功能性很强。如:

① 契合空间结构的白色吊柜设计,白色的装饰,能够使狭小的空间有视觉放大的作用!

② 方案中选择的L型橱柜的转角设计是最常见的一种利用空间的方法,深色的颜色选择,耐脏且又很美观。

③ 随着现在家电的种类越来越多,而冰箱可以说是家居不可或缺的一类家电,设计师将双开门的冰箱内嵌,以便能够留有足够的活动空间。

④ 而在房间出口左侧位置,设计师做吧台设计,一些瓶瓶罐罐可归置在于台面上,干净整洁。

春满人间

小跃层厨房装修实景图

卫生间:

本案中的卫生间空间有一种简约大气的时尚感,舒适感。墙地面整体以大规格的灰色调瓷砖铺装,合理的空间布局,以及干湿分离设计,将整个空间衬托的简约大气,而小窗的设计,满足了空间的自然采光需求,灰色调的空间也能有很明亮的感觉。

根据业主家庭成员间的不同洗浴习惯,设计师将湿区设计了淋浴和浴缸两种洗浴方式。洗手池区域则是选择了两个洗手盆的造型,满足多人使用。

小跃层装修设计

小跃层卫生间装修实景图

楼梯间:

从图中我们可以发现,楼梯没有采用死板的直行楼梯,而是选择的带有弧线的白色木质扶手楼梯,个性十足。

小跃层装修

小跃层楼梯间装修实景图

而上到楼梯之后,入眼可见一个法式风格的木质展示柜,装饰画、小绿植,都是很好的氛围点缀,并且设计师在顶部有做视觉效果的天花顶,再搭配上一盏铁艺吊灯,十分温馨!

房屋装修案例

小跃层楼梯间装修实景图

主卧室:

法式风格的乳白色大睡床置于卧室当中,想想都觉得十分的舒适。深蓝色的床头背景墙+与床头柜齐宽的两侧金属色装饰,给人一种大气、低奢之感。复古的深色窗帘与阳台的合理搭配,温暖尽显。

跃层装修案例

小跃层主卧室装修实景图

衣帽间:

本设计方案中的衣帽间藏于主卧室,做嵌入式的设计,白色框架的玻璃推拉门,搭配上衣帽间内白色的整体衣柜,能够给人一种简约、大气感受。

小跃层装修案例

小跃层衣帽间装修实景图

训练室:

业主夫妇为培养女儿的兴趣爱好,专门为她练习钢琴、古筝、舞蹈或是学习,而利用一个独立的房间。如图,我们可以看见设计师契合整个墙面做整体置物架+书柜+书桌的设计,美观而实用。

在长条形的简约书桌上摆放着钢琴键盘、古筝,练习累了,还可以在房间的空地上打上地铺,就能够好好的休息一会儿了,十分的便利哦!

装修案例

小跃层训练室装修实景图

不知道各位小主在看过小编对这套案例的介绍之后,是否有新的设计想法呢?房屋装修就是为了能够让自己生活的更加的舒适、幸福,因而在装修设计上彩绘更加的重视!更多精彩敬请关注小编为大家介绍的其他内容!

遂宁装修> 遂宁春满人间装饰> 动态详情
相关推荐
遂宁餐饮装修公司哪家好遂宁宾馆装修设计公司排名遂宁装修公司哪家好遂宁奶茶店装修公司哪家好遂宁网咖装修公司哪家好遂宁门面装修公司哪家好遂宁烤肉店装修设计公司排名遂宁面馆装修公司哪家好遂宁展馆装修公司哪家好遂宁商场装修公司哪家好

免费为我报价

预约免费设计