[豪杰装饰]80平旧房改造设计,打破原有格局,塑造全新生活!
03-16本期豪杰装饰公司的小编要给大家分享的案例是一套89㎡的家,一家三代人在此居住,为了让这间房屋更加符合业主及家人的使用需求,设计师通过解构、重组,打破原有格局,塑造这个家的全新性格与表情。
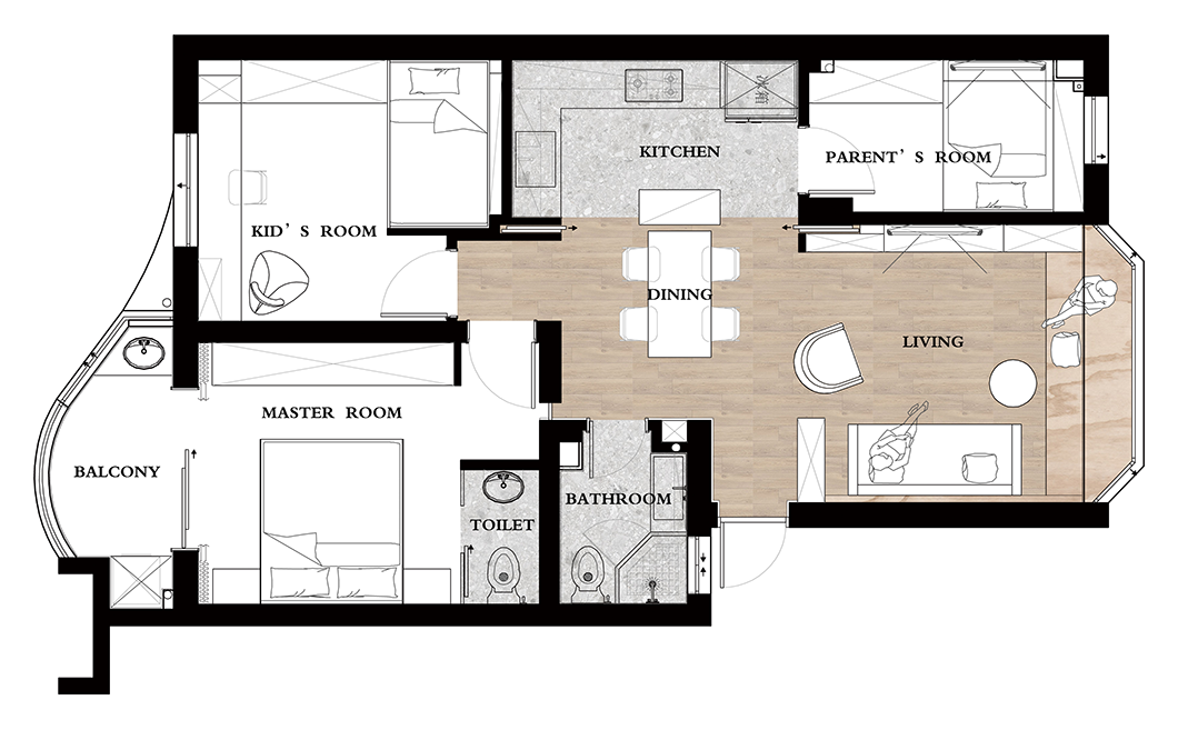
平面布置图

客厅



客厅一组简单的二人座沙发,搭配实木靠椅,简约干净。原本的电视背景墙被改造成半开放式储物柜,解决了电视背景墙闲置的问题,增加收纳。大大的窗户旁边安装了实木飘窗,在光线最佳的角落可以安静阅读、休息,设计师在窗台底部增加踏步,兼顾其作为地台的功能属性,并预留暗藏灯光,与电视墙、沙发墙连贯成整体。
餐厨


餐厅,实木的餐桌搭配白色餐椅,与整体基调保持一致。餐厅与厨房之间设计了一条通光玻璃隔断,在造景的同时提升餐厅的自然采光。餐厅另一面整墙改造成隐形储物柜,满足餐厨的收纳。
主卧


主卧以灰色为主调,彰显高级沉稳的居室氛围。为了增加主卧的起居功能,床边加装了独立的卫生间,平时将银色门拉住,避免对整体的影响。整墙的衣柜保证了衣物收纳需求,衣柜底部暗藏灯光,营造出沉浸式的氛围。
老人房



原厨房空间改造为老人房,床采用榻榻米的形式,兼顾收纳与睡觉的作用。床底部同样加了一圈灯带延伸至衣柜底部,既增加空间层次也可作为起夜灯使用。
儿童房



儿童房选择了高低床的设计,上面是睡觉的区域,下面是游戏区。床的一边连接衣柜,圆形、弧形的元素充满童趣。隔板书桌从墙的一边延伸至另一边,区域足够大也更加方便清理。
以上就是关于本期80平旧房改造设计,打破原有格局,塑造全新生活的相关内容介绍,希望能够对大家有所帮助。如果想要了解更多的装修知识,请大家关注豪杰装饰。
免费为我报价
预约免费设计