[西安都市时空装饰]尚东国际城 现代简约风 营造出温馨的小家

02-28

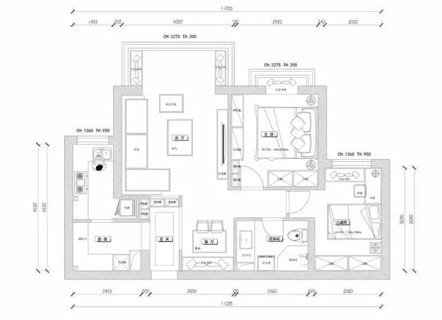
小区:上冻国际城

面积:84

户型:室2厅

风格:现代简约

造价:4-8万

施工单位:都市时空

平面布置图

关注西安都市时空装饰,更多精彩内容、案例赏析可供参考,还可免费获得量房和设计。

西安装修> 西安都市时空装饰> 动态详情
相关推荐
西安碑林区装修公司排名西安新城区装修公司哪家好西安西餐厅装修公司哪家好西安信誉好的装修公司西安雁塔区装修公司哪家好西安餐厅装修设计公司排名西安未央区装修公司排名西安全包装修公司排名西安办公楼装修公司哪家好西安美发店装修设计公司排名

免费为我报价

预约免费设计