[徐州美平方装饰]100平米北欧混搭三居室 实用又不失亮点
09-09今天为大家分享一套建筑面积100平的北欧混搭三居室装修案例,总造价25万(全包,含家具家电),业主是一对小年轻,喜欢清新自然的居家空间,入户花砖地面搭配绿色功能墙,整墙收纳中部留空,满足门厅储物需求,整个房子装修实用又不失亮点,下面就跟着徐州美平方装饰一起来看看吧~
原始结构图
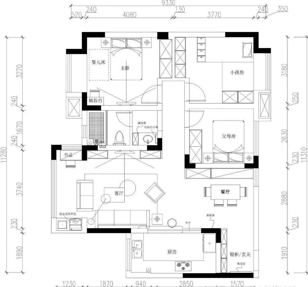
平面布置图
客厅地面通铺原木色地板,顶面采用点光源取代主灯,纳入阳台,拉伸空间视觉
Tiffany蓝色背景点缀装饰画与摇臂灯,灰米色沙发搭配黑白木色茶几+边几
米色双人位沙发在白纱、绿植、灯光等元素的映衬下,显得温馨赋有仙气
电视墙也采用储物柜模式,既增加形式感,又增加储物功能,通过局部灯光打亮,丰富空间层次,每个局部空间都做到尽善尽美
客厅望向餐厅视角,右侧是开放式厨房,门套上增加一个隐形的卷帘,方便客户在需要隔离油烟的时候使用
餐厅,为让过道更宽,采用卡座的形式,并增加一组厚度600的大储物柜,底部留空给扫地机器人,一组大大的黑板墙让孩子可以发挥想象
白色的卡座,搭配家具的木色元素,绿色背景墙点缀复古艺术画
厨房,水泥灰瓷砖地面搭配水蓝色墙砖,仿岩板的柜门与木皮柜门搭配,打造轻快养眼的料理空间
阳台洗衣房,加高地台划分场域,配置洗衣+干衣+壁挂小洗衣机
从厨房吧台望向过道
儿童房可爱梦幻,考虑到业主有二胎的可能性,选择上下床的设计,床之间纵横交错,刚好把节省的空间利用起来做一个书桌
次卧,原木色地板搭配Tiffany蓝色背景与窗帘,木色元素从家具、灯饰、装饰画皆有贯穿,一抹灰色布艺与床品让空间不失沉稳
主卧,整体调性采用粉色系,也是女业主超喜欢的颜色,与木色家具、灰色布艺搭配,自然中带着俏皮与活力
床侧设计入墙式衣柜,为方便夜间拿衣服,衣柜里面增加灯光系统,既美观又实用

卫生间干湿分区,在洗脸盆旁边设计立柜,收纳化妆品和生活用品,门一关整体美观性超强,兼具实用性
卫生间淋浴区地面采用大理石拉槽防滑,并留出导流槽,黑色五金搭配花砖背景,电热毛巾架功能实用
以上就是关于100平米北欧混搭风格装修案例的分享,希望能够给大家带来一些装修灵感。点击徐州美平方装饰,查看更多装修案例美图、装修攻略及业主评价等信息。
免费为我报价
预约免费设计