[徐州空间榜样装饰]96㎡简约风装修,去繁就简,十分耐看
01-15今天徐州空间榜样装饰小编就为大家带来一套96㎡简约风装修,去繁就简,十分耐看!屋主一家三口,从现有的户型规划来看,虽说比较常规,但也是有很多位置不太合理的。比如在客厅面积有限的情况下,南阳台就没有存在的必要,并且次卧还得从南阳台进。再比如当初为了使电视墙与沙发墙对称,给玄关墙体做延伸,也是没有意义的设计,且还影响到了玄关的动线。因此,这些问题在改造上,也都要解决掉。
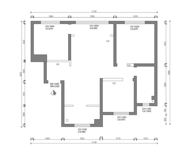
平面结构图

平面方案图

户型结构改造如下
1、拆掉玄关多余的墙体,并以转角柜的方式来解决进门收纳需求。
2、将南阳台纳入客厅,增加客厅的使用面积;并且厨房与餐厅采用一体化来设计。
3、考虑到主卧视听功能很鸡肋,调整门洞位置,并将衣柜设计在电视墙上,可以提高储物能力。
4、儿童房部分墙体做内陷设计,这样既不会影响到内部空间,也能摆放一个小柜子。
玄关

侧面墙体刷上黑色乳胶漆,可以让人一进门就能感受到强烈的质感。尤其是在配置上无框水滴镜后,更是凸显出了一抹精致。进门对面的玄关柜采用悬挂的方式来安装,不仅弱化了进门后的视觉拥堵性,也方便了扫地机器人无死角的清理卫生。
客厅

来到客厅,放弃墙面的造型以及顶部的吊顶设计,可以让空间尽显干净清爽;而当南阳台纳入客厅之后,也使客厅有了不错的空间感,并可以最 大化引入室外的光线。原有的橡木电视柜,直接贴着转角玄关柜摆放,既将旧物二次利用了,也为整个空间提供了一抹温润,看起来非常和谐。

沙发墙采用去繁就简的方式,直接满刷上绿色的乳胶漆,视觉上既没有很单调,也为空间营造出了一抹清新。蓝色的沙发、绛红色的窗帘、以及绿植配置,完美提高了空间的丰富性,并做到了色彩平衡。
餐厨区

拆掉厨房的墙体,采用一体化结构来设计,不管是对于厨房,还是对于餐厅,都增加了一定的使用面积。比如厨房的橱柜,在U形的基础上,就延伸出了一个吧台,非常实用。再比如冰箱旁边的高柜,还内嵌了一台洗衣机,从而解决了家里的基本生活需求。
对于这种开放式设计,很多人可能会担心油烟问题。事实上,对于厨房需求比较高的家庭来说,开放式设计的确不合适。不过由于屋主已经入住几年了,所以也很明白在厨房使用率低的情况下,这样设计并没有什么影响。
过道

过道的设计依然以简约为主,不过为了凸显出层次,将沙发墙顶部超宽的线条延伸过来后,却在无形中又提高了视觉延伸性。右边儿童房部分墙体做内陷后,则摆放了一件旧柜子,既工整又实用。
不过最值得称赞的还是卫生间半帘设计,因为在镜子正对面门的情况下,难免会让人感到一丝不自在,所以用半帘来做遮挡,就巧妙地解决了这个问题。
卫生间

来到卫生间,布局采用干湿分离结构来设计,不仅提高了使用率,也能保证空间的整洁度。而采用长虹玻璃来做墙体隔断,也为干区增添了一抹采光,非常实用。
主卧室

主卧以素雅为基调,土黄色的床头背景墙,搭配上两件旧床头柜,立马就使空间显得清爽多了。而将衣柜设计在电视墙处,也释放了空间的开间尺寸,让房间看起来更加的宽敞。当然,为了不浪费空间,进门转角处则配置一个挂衣架。

考虑到家里有一个抽屉柜,所以衣柜尺寸并没有做满,以方便墙面的壁挂空调安装,以及缓解空间的拥挤性。
儿童房

儿童房的色调凸显出了稚嫩,以营造出活泼轻松的居住环境。沙发结构的单人床,既能满足孩子的睡眠,也增添了一抹趣味性,而给地面满铺上地毯,也是为了让孩子有一块舒适的玩耍区。
从整个案例来看,虽说空间效果很不一般,但确实做到了耐看。所以也建议大家在装修新房时,多以生活的角度来考虑设计。因为再惊艳的空间效果,也会随着时间而慢慢冲淡,只有实用性才是最长久的。
了解更多装修攻略、精美案例,请继续关注徐州空间榜样装饰。
免费为我报价
预约免费设计