古典酒吧1200平装修设计效果图图片
古典酒吧1200平酒柜装修设计效果图图片
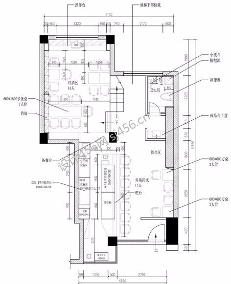
酒吧1200平装修设计户型图
酒吧1200平装修设计户型图
猜你喜欢
赣州5000平米现代简约风格酒楼装修风效果图
赣州3500平米经典中式酒店装修风效果图
赣州2700平米现代风格酒店装修风效果图
2000平中式风格酒楼装修设计效果图风效果图
2000平米简约风格酒店装修效果图风效果图
200平混搭风格酒店装修设计效果图风效果图
1250平中式风格餐馆装修设计效果图风效果图
400平中式风格茶馆装修图片风效果图
200平美容美发中式风格装修效果图风效果图
186平米现代风格生活用品店装修效果图风效果图
免费为我报价
预约免费设计