小户型厨房设计装修图片
小户型客厅转角沙发装修图片
小户型客厅设计装修效果图片欣赏
小户型客厅设计装修图片欣赏
卧室布艺窗帘装修图片欣赏
现代家装小户型设计效果图
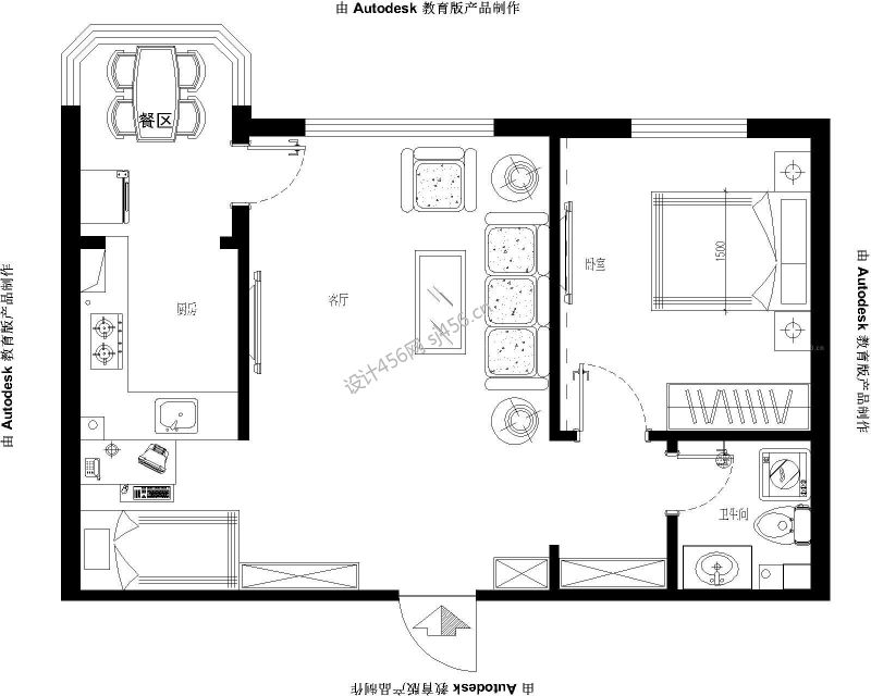
一居室房子户型图设计
猜你喜欢
哈尔滨实创装饰23万装修省公务员小区220平简中式四居室禅意美家风效果图
哈尔滨实创装饰14.6万装修翠湖天地184平北欧风格四居室极致美居风效果图
9万元装修远大中央公园109平现代风格两居大气美居-哈尔滨实创装饰风效果图
哈尔滨实创装饰7.7万装修江北万达旅游城88平现代简约两居室时尚美家风效果图
哈尔滨实创装饰11.9万装修巴黎第五区120平欧式风格三居室奢华美居风效果图
哈尔滨实创装饰9.9万装修哈西万达广场125平简中式二居禅意美家风效果图
哈尔滨善上居18号楼D1-D2-02户型93平二居室欧式混搭设计方案风效果图
哈尔滨实创装饰11万装修翠湖天地117平后现代风格二居室温馨港湾风效果图
哈尔滨实创装饰11万装修群力观江国际134平现代简约三居室格调美家风效果图
宝宇天邑澜湾17#1单元1号户型115平时尚现代装修设计方案风效果图
免费为我报价
预约免费设计