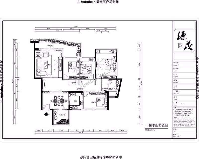
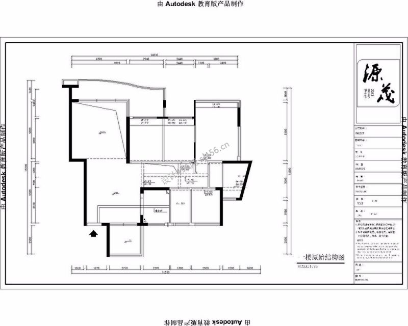
惠州源茂装饰 熙龙小镇140平米现代简约装修案例
惠州市惠城区三环装饰城C区源茂装饰
猜你喜欢
惠州180平方中式风格装修风效果图
惠州90平新中式风格装修设计图风效果图
惠州110平现代简约三居室装修风效果图
星河盛世三居125平米简约风装修案例风效果图
恒大雅苑82平两居室北欧风格装修案例风效果图
玖龙台149㎡三室两厅新中式风格装修案例风效果图
星河丹堤138㎡三居室北欧风格装修案例风效果图
熙龙小镇140平米现代简约装修案例风效果图
茶餐厅700平米欧式风格装修案例风效果图
免费为我报价
预约免费设计