随州丰立装饰 【丰立装饰】美式风格

美式 125m²

随州丰立装饰

案例11 工地9 团队6 文章7

全国连锁

材料环保

本土品牌

知名公司

世纪花园125平米三居美式客厅装修设计效果图

世纪花园125平米三居美式茶几装修设计效果图

世纪花园125平米三居美式沙发背景墙设计效果图

世纪花园125平米三居美式餐厅吊灯装修设计效果图

世纪花园125平米三居美式沙发背景墙装修设计效果图

世纪花园125平米三居美式餐厅装修设计效果图

世纪花园125平米三居美式卧室装修设计效果图

世纪花园125平米三居美式卫生间装修设计效果图

世纪花园125平米三居美式厨房装修设计效果图

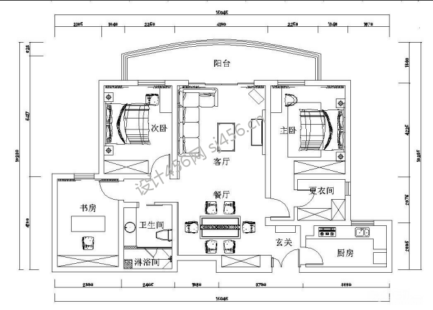
世纪花园125平米三居美式平面图

猜你喜欢

随州装修> 随州丰立装饰> 效果图详情
相关推荐
随州靠谱装修公司排名随州可靠的装修公司随州装修公司排名随州靠谱的装修公司随州十大装修公司排名随州装修公司哪家好随州性价比高的装修公司随州口碑好的装修公司随州实力强的装修公司随州知名装修公司

免费为我报价

预约免费设计