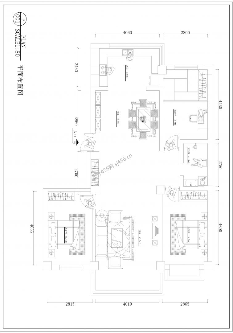
沈阳森朗装饰 北陵家属院130平米中式三居室装修案例
沈阳市皇姑区万科金域华府
猜你喜欢
45平米私人会所中式风格装修案例风效果图
乐天盛苑190平米现代三居室装修案例风效果图
北陵家属院130平米中式三居室装修案例风效果图
300平米国际打击乐艺术中心装修案例风效果图
碧桂园学府360平米欧式别墅装修案例风效果图
农贸大厅2000平米现代风格装修案例风效果图
保利溪湖林语70平米现代二居室装修案例风效果图
保利大都会180平米欧式四居室装修案例风效果图
免费为我报价
预约免费设计