壹屋壹舍装饰 融创熙园182平米大平层中式风格装修案例

中式 182m²

无锡壹屋壹舍装饰装潢设计有限公司

案例111 工地13 文章27

材料环保

高性价比

欧标工艺

182平米大平层中式风格客厅天花板设计装修案例

182平米大平层中式风格餐厅天花设计装修效果图

182平米大平层中式风格卧室背景墙装修案例图片

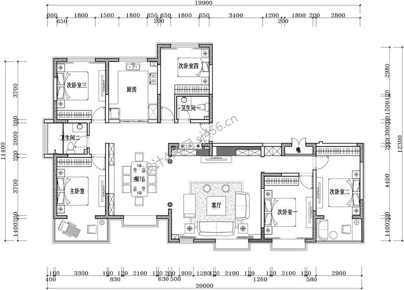
182平米大平层中式风格户型图装修案例效果图片

猜你喜欢

无锡装修> 壹屋壹舍装饰> 效果图详情
相关推荐
无锡餐厅装修设计公司排名无锡厂房装修公司哪家好无锡咖啡厅装修设计公司排名无锡ktv装修公司哪家好无锡北塘区装修公司排名无锡ktv装修设计公司排名无锡幼儿园装修设计公司排名无锡会所装修公司哪家好无锡酒店装修设计公司排名无锡服装店装修设计公司排名

免费为我报价

预约免费设计