88平米现代简约风格三居室客厅背景墙装修案例
88平米现代简约风格三居室客厅电视墙装修图片
88平米现代简约风格三居室卧室衣柜装修效果图
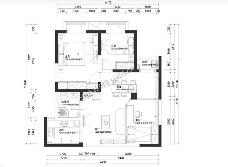
现代简约风格88平米三居室户型图装修案例图片
猜你喜欢
九龙仓碧玺118㎡平米现代简约风格三居室装修案例风效果图
水韵金阁88平米现代简约风格三居室装修案例风效果图
华侨城运河湾110平米现代风格三室装修案例风效果图
柴机新村76平米简约风格两室装修案例风效果图
香榭一品106平米日式风格三室装修案例风效果图
怀仁西苑140㎡中式风格四居室装修案例风效果图
碧桂园120㎡简约风格三室两厅装修案例风效果图
瑞扬家园126㎡三室两厅中式风格装修案例风效果图
金科世界城110㎡现代风格三室两厅装修案例风效果图
保利香槟国际260㎡中式风格别墅装修案例风效果图
免费为我报价
预约免费设计