西安龙发装饰总部 龙湖香醍

欧式 320m²

北京龙发装饰集团西安分公司

案例105 工地11 团队9 文章131

全国连锁

高端设计

别墅大宅

品牌实力

别墅320平简欧风格客餐厅装修图

别墅320平简欧风格书房装修图

别墅320平简欧风格客卧室设计装修图

别墅320平简欧风格儿童房装修图

别墅320平简欧风格卧室装修图

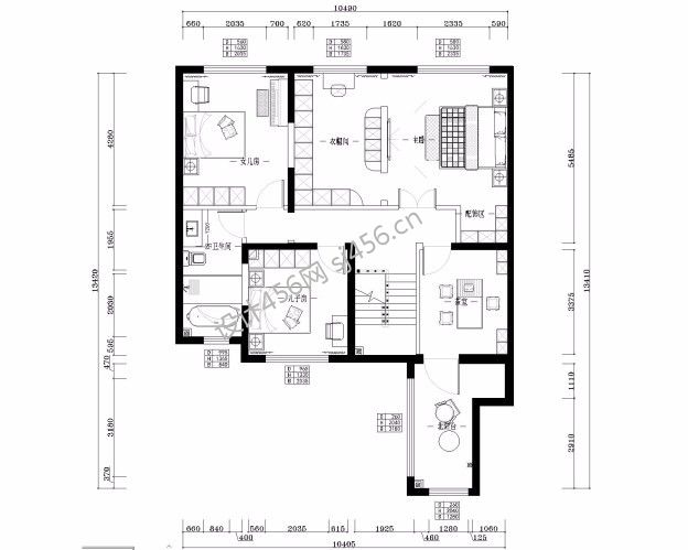
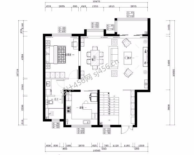
别墅320平平面设计图

别墅320平户型图图片

猜你喜欢

西安装修> 西安龙发装饰总部> 效果图详情
相关推荐
西安面馆装修设计公司排名西安酒店装修设计公司排名西安咖啡厅装修公司哪家好西安网咖装修设计公司排名西安火锅店装修公司哪家好西安服装店装修公司哪家好西安宾馆装修公司哪家好西安足浴店装修设计公司排名西安咖啡厅装修设计公司排名西安装修公司哪家好

免费为我报价

预约免费设计