实创体验馆 绿城郁金香岸95平米现代简约风格装修案例

现代 95m²

实创家居装饰青岛有限公司

案例8 文章4

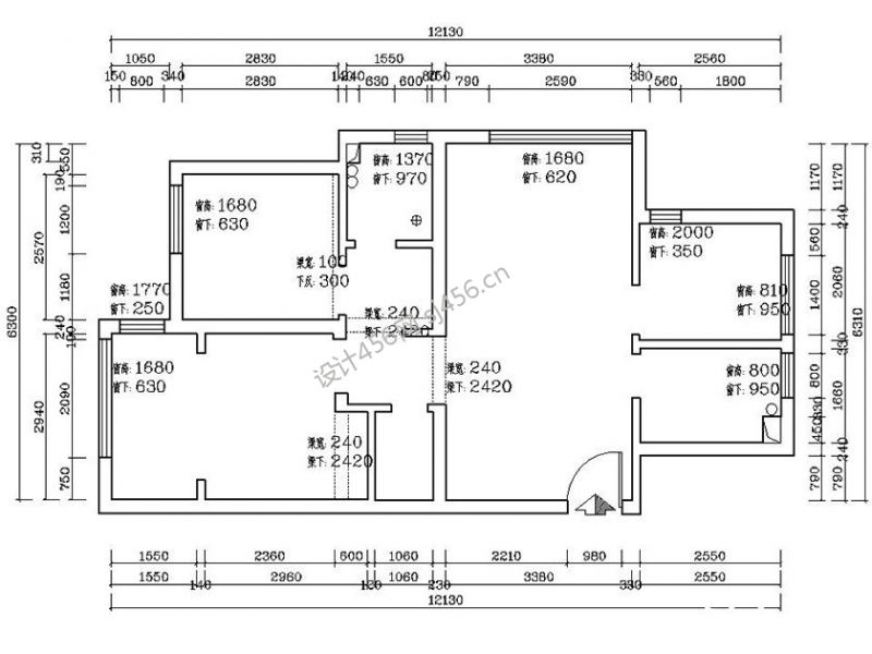
绿城郁金香岸95平米现代简约风格装修案例

绿城郁金香岸95平米现代简约风格装修案例

绿城郁金香岸95平米现代简约风格装修案例

绿城郁金香岸95平米现代简约风格装修案例

绿城郁金香岸95平米现代简约风格装修案例

绿城郁金香岸95平米现代简约风格装修案例

绿城郁金香岸95平米现代简约风格装修案例

绿城郁金香岸95平米现代简约风格装修案例

绿城郁金香岸95平米现代简约风格装修案例

猜你喜欢

青岛装修> 实创体验馆> 效果图详情
相关推荐
青岛奶茶店装修设计公司排名青岛办公室装修设计公司排名青岛整装公司排名青岛厂房装修设计公司排名青岛咖啡厅装修公司哪家好青岛展馆装修设计公司排名青岛水果店装修设计公司排名青岛茶室装修公司哪家好青岛水果店装修公司哪家好青岛学校装修设计公司排名

免费为我报价

预约免费设计