实创体验馆 新海园品阁82平米简欧风格装修案例

欧式 82m²

实创家居装饰青岛有限公司

案例8 文章4

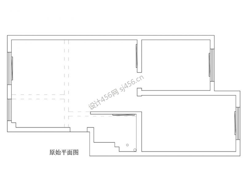
新海园品阁82平米简欧风格装修案例

新海园品阁82平米简欧风格装修案例

新海园品阁82平米简欧风格装修案例

新海园品阁82平米简欧风格装修案例

新海园品阁82平米简欧风格装修案例

新海园品阁82平米简欧风格装修案例

猜你喜欢

青岛装修> 实创体验馆> 效果图详情
相关推荐
青岛受欢迎的装修公司青岛门面装修公司哪家好青岛ktv装修公司哪家好青岛旧房装修公司哪家好青岛西餐厅装修设计公司排名青岛面馆装修设计公司排名青岛ktv装修设计公司排名青岛知名装修公司青岛品牌装修公司排名青岛母婴店装修公司哪家好

免费为我报价

预约免费设计