佛山名雕装饰 万科兰乔圣菲-北欧风格-别墅

欧式 500m²

深圳市名雕装饰股份有限公司佛山分公司

案例11 工地4 文章18

万科兰乔圣菲500平米欧式别墅客厅装修设计效果图

万科兰乔圣菲500平米欧式别墅餐厅装修设计效果图

万科兰乔圣菲500平米欧式别墅吊顶装修设计效果图

万科兰乔圣菲500平米欧式别墅高低床装修设计效果图

万科兰乔圣菲500平米欧式别墅卧室装修设计效果图

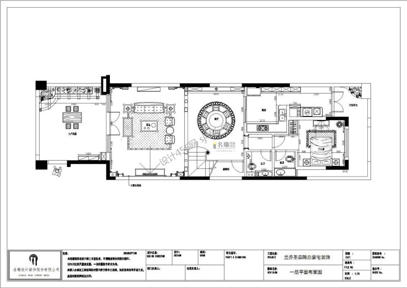
万科兰乔圣菲500平米欧式别墅平面图

猜你喜欢

佛山装修> 佛山名雕装饰> 效果图详情
相关推荐
佛山学校装修公司哪家好佛山高端装修公司哪家好佛山网咖装修公司哪家好佛山餐饮店装修设计公司排名佛山医院装修设计公司排名佛山办公室装修公司哪家好佛山超市装修公司哪家好佛山超市装修设计公司排名佛山性价比高的装修公司佛山展馆装修公司哪家好

免费为我报价

预约免费设计