佛山名雕装饰 万科金域蓝湾-现代时尚风格-四居室

现代 252m²

深圳市名雕装饰股份有限公司佛山分公司

案例11 工地4 文章18

万科金域蓝湾252平米四居室现代时尚风格餐厅装修设计效果图

万科金域蓝湾252平米四居室现代时尚风格客厅吊顶装修设计效果图

万科金域蓝湾252平米四居室现代时尚风格卧室装修设计效果图

万科金域蓝湾252平米四居室现代时尚风格卧室吊顶装修设计效果图

万科金域蓝湾252平米四居室现代时尚风格卧室背景墙装修设计效果图

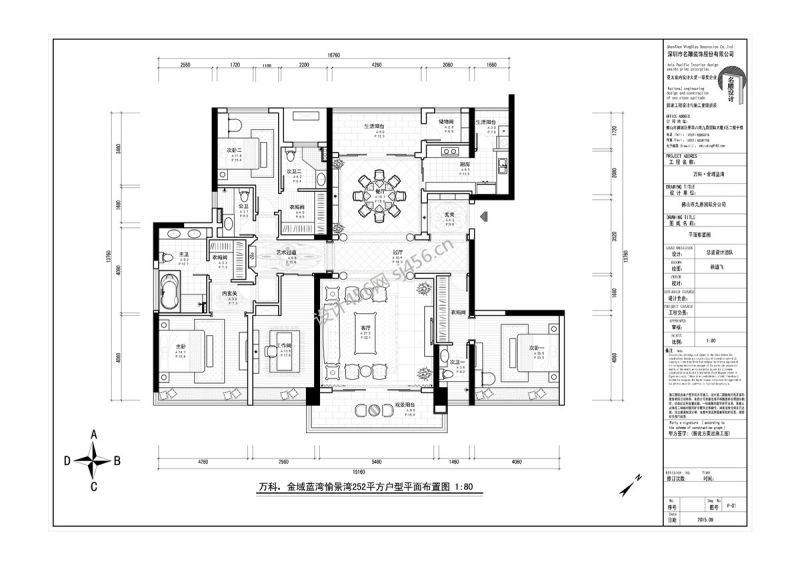
万科金域蓝湾252平米四居室现代时尚风格平面图

猜你喜欢

佛山装修> 佛山名雕装饰> 效果图详情
相关推荐
佛山靠谱的装修公司佛山店面装修设计公司排名佛山幼儿园装修公司哪家好佛山餐厅装修设计公司排名佛山本地装修公司哪家好佛山净化车间装修公司哪家好佛山性价比高的装修公司佛山西餐厅装修设计公司排名佛山火锅店装修设计公司排名佛山装修公司哪家好

免费为我报价

预约免费设计