佛山名雕装饰 佛山滨江一号-现代风格-三居室

现代 130m²

深圳市名雕装饰股份有限公司佛山分公司

案例11 工地4 文章18

滨江一号130平米三居室现代风格卧室装修设计效果图欣赏

滨江一号130平米三居室现代风格客厅装修设计效果图欣赏

滨江一号130平米三居室现代风格卧室背景墙装修设计效果图欣赏

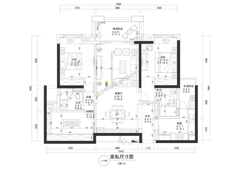
滨江一号130平米三居室现代风格平面图

猜你喜欢

佛山装修> 佛山名雕装饰> 效果图详情
相关推荐
佛山茶室装修公司哪家好佛山服装店装修设计公司排名佛山酒店装修公司哪家好佛山信誉好的装修公司佛山办公楼装修公司哪家好佛山眼镜店装修公司哪家好佛山清吧装修公司哪家好佛山幼儿园装修设计公司排名佛山饭店装修公司哪家好佛山酒店装修设计公司排名

免费为我报价

预约免费设计